Back HamiltonAll suburbs4/3 Elmira Avenue

Investors,Freehold, Stylish & Secure.

4/3 Elmira Avenue, Chartwell

$708,000

32311 

Contact us about this property
 
Harcourts Logo
 
 
 
 

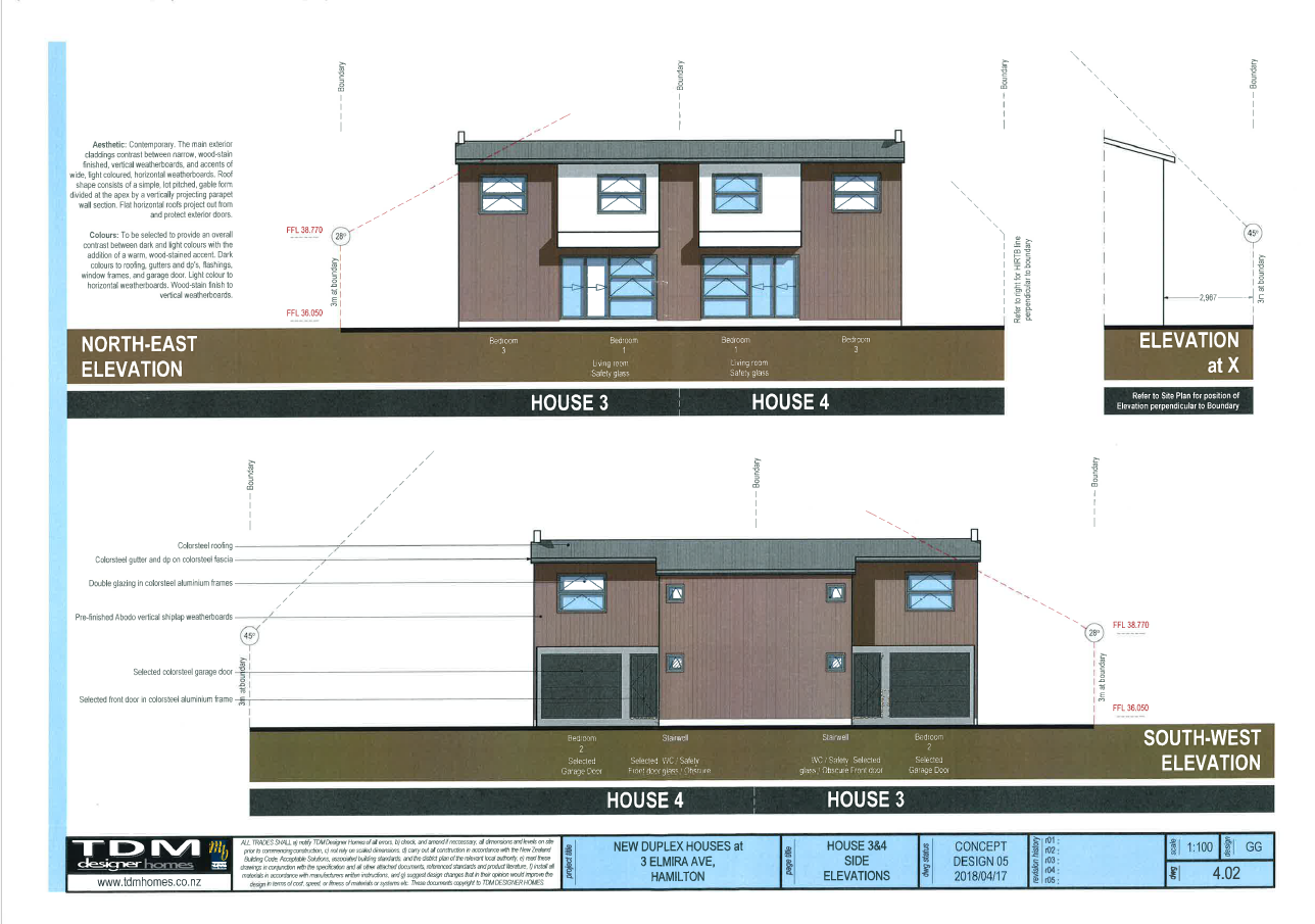
Tucked away in a private, well-maintained complex, this freehold townhouse offers the perfect blend of style, space, and smart investment fundamentals, privacy and unbeatable location Located in a high-growth, tenant-friendly area, the property is ideal for both seasoned and first-time investors seeking stable returns and capital growth. Fully tenanted with minimal vacancy and freehold, savvy investors -this one tick all the boxes! 3Bedrooms with master with ensuite plus an additional 3rd toilet for guests Fresh, contemporary interiors greet you the moment you step inside, with a stylish kitchen perfect for entertaining or simply enjoying your morning coffee. Whether you're entertaining or relaxing, this space is designed for easy living. The living area flows effortlessly to your own private outdoor space-ideal for BBQs, relaxing, or a quiet drink after work. With a heat pump for year-round comfort. Internal access garage for security & the convenience of lock up and leave minutes from the CBD, Claudelands, and Chartwell. Location is everything-and this one delivers, you're moments away from cafes, shops, parks, and all the vibrant local lifestyle offerings.

Don't miss this golden opportunity! Whether you're starting out, or adding to your investment portfolio-this property deserves your attention. The market is moving and so should you!
Unit 3 now also available
Call Sally today to arrange your viewing or discuss your options. 0274726677


To view the property files use this link: https://vltre.co/v62Flw

Read More

Main property features

32311393 

 
 
Load Time: 0.8386 secs, Memory Usage: 3.93 mb