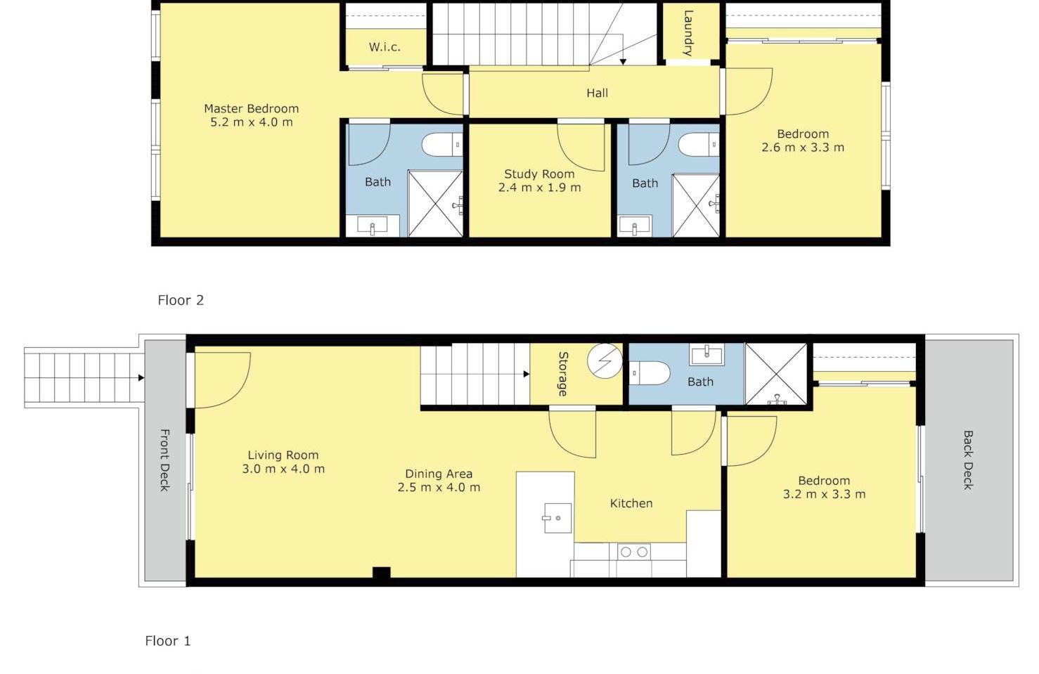
Unit 6: 3 Bedrooms + 1 Study, 3 Bathrooms , 1 Living room, 1 Car park.
Step into this elegant, Freehold, two-level townhouse, meticulously crafted for both comfort and convenience. The upper level boasts three generously sized bedrooms, with the master featuring its own private ensuite for a touch of luxury.
Downstairs, the heart of the home awaits-a sleek contemporary kitchen that flows effortlessly into the open plan living and dining areas, creating the perfect setting for everyday life and memorable gatherings. There is one bedroom and bathrooms for the elderly parents.
Step outside to a fully fenced, low-maintenance garden, complete with a deck that's perfect for relaxation or entertaining. The property also offers the added convenience of an off-street parking space.
Unit 6: 3 Bedrooms + 1 Study, 3 Bathrooms , 1 Living room, 1 Car park.
Conveniently located in this ever popular suburb of Ranui, walking distance to Ranui train station, and the local shops and amenities.

















