Hooray - a cheap but extremely tidy home, with no flooding issues… and price to sell fast!
It’s ideal for first-home buyers, families, or a no-brainer investment.
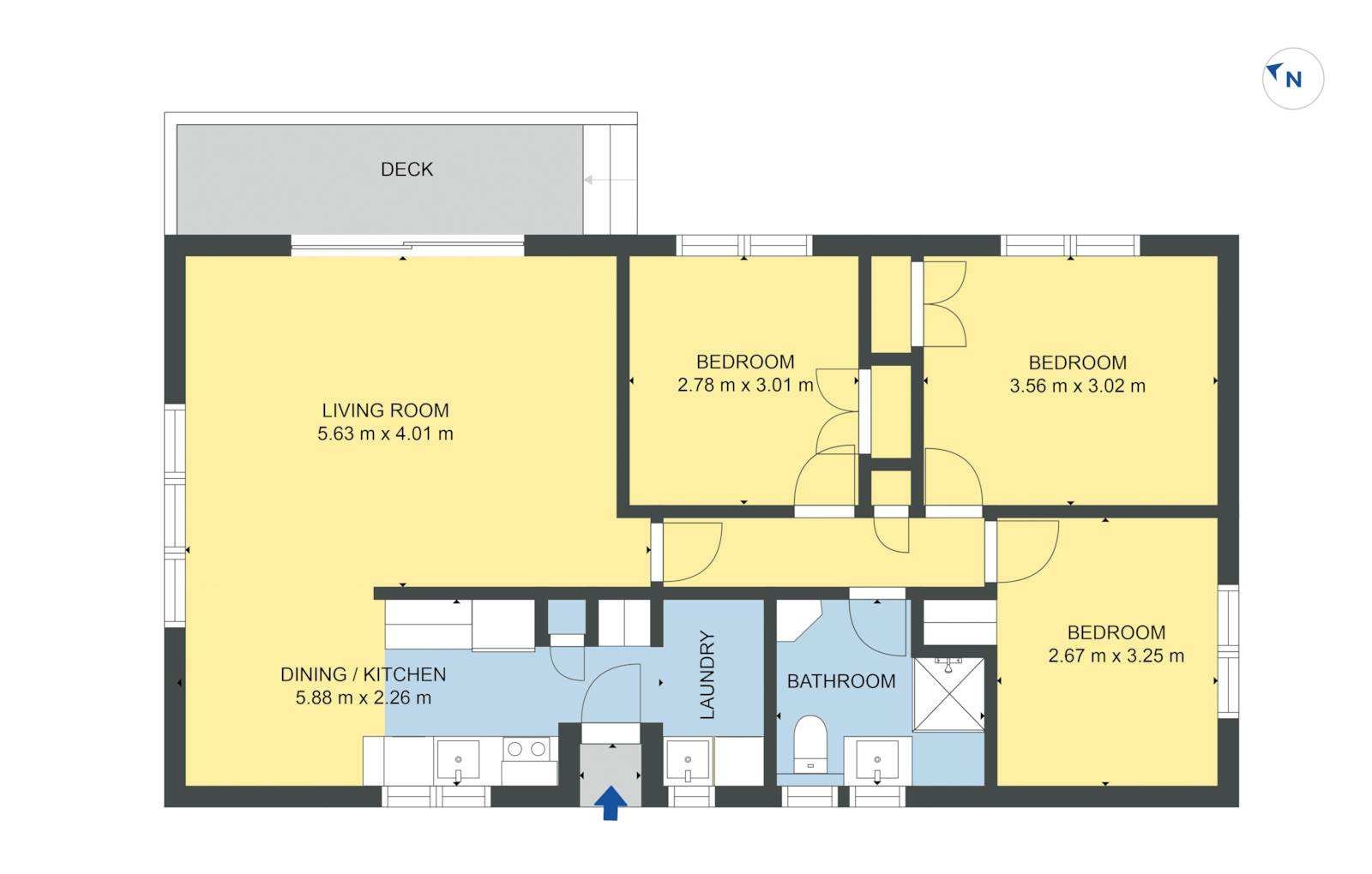
Offering modern living with a touch of charm, this property boasts:
• Three spacious bedrooms - ideal for growing families or home office space
• Large family bathroom with recent upgrades such as a brand-new shower that went in last month and a hot water cylinder only a few years old
* A separate laundry area
• Bright and airy living area - featuring seamless indoor-outdoor flow to a sun-soaked deck
• Contemporary kitchen & dining - modern appliances, ample storage, and a sleek finish
• Large backyard - perfect for kids, pets, and outdoor entertaining or extra parking!!
• Heat pump & insulation - ensuring year-round comfort
• Healthy Homes Compliant
Situated in a sought-after location close to schools, shopping, parks, and public transport, only a short drive to the Lincoln Road motorway ramps. You for sure don't want to miss out on this!
Call the team today!










