Step inside this stunning fully renovated character home where timeless charm meets contemporary living. Beautifully restored with care and attention to detail, this home seamlessly blends its classic features with modern finishes to create a warm, welcoming, and effortlessly stylish space.
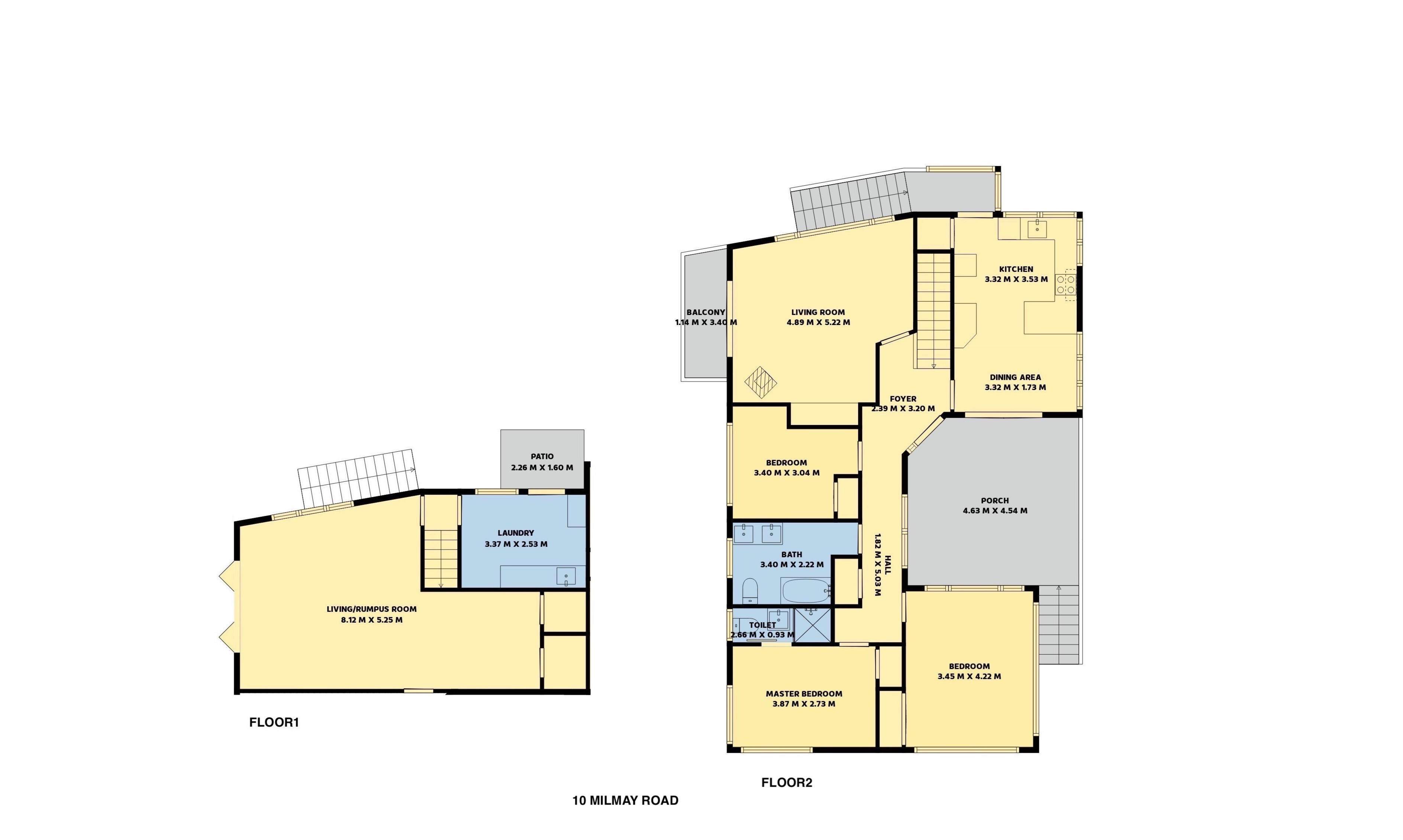
Boasting 3 generous bedrooms, 2 Bathrooms, a modern designer kitchen, a rumpus room down-stairs and light-filled open-plan living areas, this home is perfect for families, professionals, or anyone who appreciates character with a modern twist. Original features like polished timber floors, decorative ceilings, and classic weatherboard exterior have been thoughtfully preserved, while fresh updates bring comfort, convenience, and effortless style.
Step outside to a sun-soaked deck and easy-care garden - ideal for entertaining, relaxing, or enjoying a morning coffee in your private outdoor haven.
Key Features:
• Fully renovated throughout - just move in and enjoy!
• Modern kitchen and bathroom upgrades
• Open-plan living with seamless indoor-outdoor flow
• Retained character details for warmth and personality
• Secure, family-friendly section
• Conveniently located close to transport, shops, schools, and cafes
This is your opportunity to secure a beautifully restored home with all the hard work done.
Give us a call for private viewings or come see us at our open home.
Conjunctionals are welcome from DAY 1.




















